内蒙古上海庙矿业有限责任公司是中国双维投资管理公司与临沂矿业集团有限责任公司共同出资成立的企业法人,目前旗下有榆树井煤矿和新上海一号煤矿两对矿井。新上海一号煤矿设计生产能力400万吨/年。
2019年矿井委托煤炭科学技术研究院有限公司对FD5断层富导水性进行探查,探查方法为物探钻探相结合的方式,其中物探采用瞬变电磁法和可控源音频大地电磁法,2019年9月提交的《上海庙矿业新上海一号煤矿边界断层导水性探查报告》FD5断层西部的导水性较强,东部的导水性较弱。中煤科工集团西安研究院 2019年12月提交的《有限公司内蒙古上海庙矿业有限责任公司新上海一号煤矿宝塔山砂岩放水试验成果报告》,放水试验中距离FD5断层最近的B-9孔水文降深最大,验证了FD5断层西部导水性较强的结论。
为阻隔煤层露头区上覆含水层对15煤顶板充水含水层的侧向补给,为114155工作面掘进和回采减弱顶板水强度;进一步探查FD5断层空间展布特征、派生断层发育情况,验证其含(导)水性。提高煤田储量级别。
1、FD5断层治理原则
1、立足矿区,统筹兼顾
本次勘探区为新上海一号煤矿,作为一个联合整体进行地质及水文地质联合补充勘探,从区域上统一分析水文地质条件,统筹兼顾。
2、突出重点的原则
紧密配合煤矿生产及防治水工作的迫切需要,本次工作的重点是先施工D1钻孔组对FD5断层以北114155工作面上顺槽与露头煤柱线之间平面区域内的15煤顶板100m范围内砂岩含水层进行超前治理,共9个钻孔。为矿井防治水提供基础地质、水文地质依据。
3、点、面结合的原则
本次勘查的主要目的层为孔隙裂隙含水层,其发育极不均匀,富水性差异明显,因此在详细分析研究现有资料,结合煤矿实际确定孔位,结合同期开展的地面三维地震工作,实现钻探(点)和物探(面)相结合,综合实现地层、煤层、主要构造及水文地质条件的控制,相互验证、相互补充,达到在宏观上研究勘查治理目的层的目的。
4、一孔多用的原则
本次施工的注浆孔部分既是抽水孔,也是动态观测孔,亦兼做注浆孔。尽量采取一孔多用的原则,以最小的经济投入,取得最佳地质效果和经济效益。
5、坚持地质“三边”工作的原则
工作期间,认真做好地质“三边”工作,对取得各种基础资料要进行深入的分析研究,随着工作的深入和认识水平的提高,必要时对工程布置进行优化或调整。
2、分段下行式连续注浆技术
分段下行式注浆是指从地面开始,自上而下钻一段孔,注一段浆。每注一段后继续复钻下延钻孔与注浆,如此交替进行,直到设计的最终注浆深度。
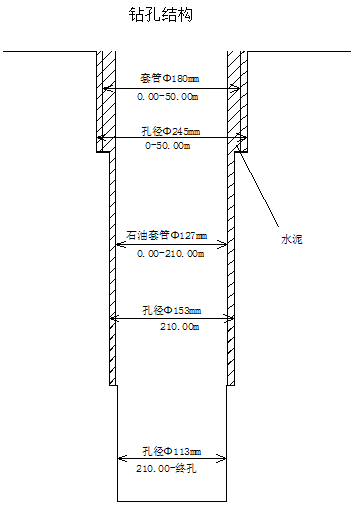
3、钻孔布置图
4、应用精细化探查技术
1、瞬变电磁
瞬变电磁法对测区地下含导水情况进行划分,绘制地下岩溶分布图,查明矿坑周边岩溶发育区域。
2、高密度电法
结合瞬变电磁的探测结果,设计地面高密度电法、瞬变电磁法对疑似重点区域开展探测。
3、钻孔测斜
“千寻星耀SE”型GPS测量仪,利用全球卫星定位系统的方法,对钻孔进行了放样,并对所有钻孔进行了复测。
5、钻孔注浆情况及剖面图
6、一区域主要工程量完成情况
7、注浆资料分析
在施工中严格按照施工顺序,首先施工D1-3,D1-5,D1-7钻孔,根据这3个钻孔进行预先注浆试验,确认治理区域目标含水层的富水性、FD5断层导水性与断层注浆治理可行性;第二步施工D1-4,D1-6,D1-8钻孔;最后施工D1-1,D1-2,D1-9钻孔完成连排隔水帷幕的建立。如图所示,注浆量随着注浆顺序明显降低,注浆效果明显。
8、抽水实验资料分析
各孔各段的注浆终压终量、注浆后通过压水试验测得的单位吸水率等达到注浆结束标准。对D1-9检查孔进行抽水试验,均无水,表明富水性极弱,周围观测孔D1-1、B-13水位不降反升,不受抽水试验影响;随施工顺序钻孔注浆量明显降低,表明注浆效果达到预计要求。
D1-1检查孔分别距两侧D1-2孔、D1-3孔74m、73m,D1-9检查孔分别距西侧D1-7孔、140m,注浆效果检验合格,所以注浆扩散半径≥37m。
FD5断层治理一区域的隔水帷幕注浆同时满足设计终压终量标准,注浆后压水试验单位吸水量值≤0.01,满足设计要求。
9、治理效果
根据设计方案开展帷幕注浆治理,施工了9个钻孔,D1-1孔注浆71.7t;D1-2孔注浆57.95t;D1-3孔注浆1492.52t;D1-4孔注浆152.6t;D1-5孔注浆1812.3;D1-6孔注浆152.6t;D1-7孔注浆954.71t;D1-8孔注浆247.67t;D1-9孔注浆134.96t,注浆共计使用水泥5064t。
注浆结束后进行简易水文观测,施工检查孔抽水试验无水,周边钻孔不升反降。D1-2、D1-4、D1-6孔复钻至原孔底后压水试验压力12MPa,达到矿方设计要求。FD5断层治理区域的隔水帷幕注浆同时满足设计终压终量标准,注浆后压水试验单位吸水量值≤0.01满足设计要求。现工作面已安全推进500m,安全顺利的通过了断层构造带范围。
FD5断层一区域注浆加固的治理效果达到设计要求,同时在施工技术力量、施工装备、施工经验及精益求精开拓创新的工作精神得到了矿方认可。
现在公司正在施工第二区域的治理工程,预计5月30日竣工。